MICRO ARCHITECTURE
Maison 50m²
Atelier
Une Chambre en +
CONSTRUCTION ECOLOGIQUE

Outils numériques
La conception des projets se fait en 3D pour visualiser le projet en volume afin de se seprojeter

Coupe en perspective
Allier la compréhension du projet entre éléments technique et volumétrie projetée
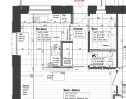
Logement – Maison
Aménagement intérieur – Mobilier
Je vous accompagnement sur des projets neufs, des extensions ou des rénovations.



